PROPRIETE A VENDRE - LOUHANS - 304 m2 - 425 000 €
DEMEURE BOURGEOISE DE CARACTERE AVEC PARC – 304 M² – DEPENDANCES
À seulement 10 minutes de Louhans, au cœur d'un village avec toutes les commodités, cette élégante demeure bourgeoise du début du XXᵉ siècle développe environ 304 m² habitables et s'implante sur un magnifique terrain arboré de 6 520 m².
Une propriété rare qui combine cachet de l'ancien, grands espaces et nombreuses possibilités de projet : grande maison familiale, résidence secondaire, gîtes ou chambres d'hôtes.
Dès l'entrée, la maison dévoile une atmosphère chaleureuse avec cheminées anciennes, belles hauteurs sous plafond et pièces lumineuses.
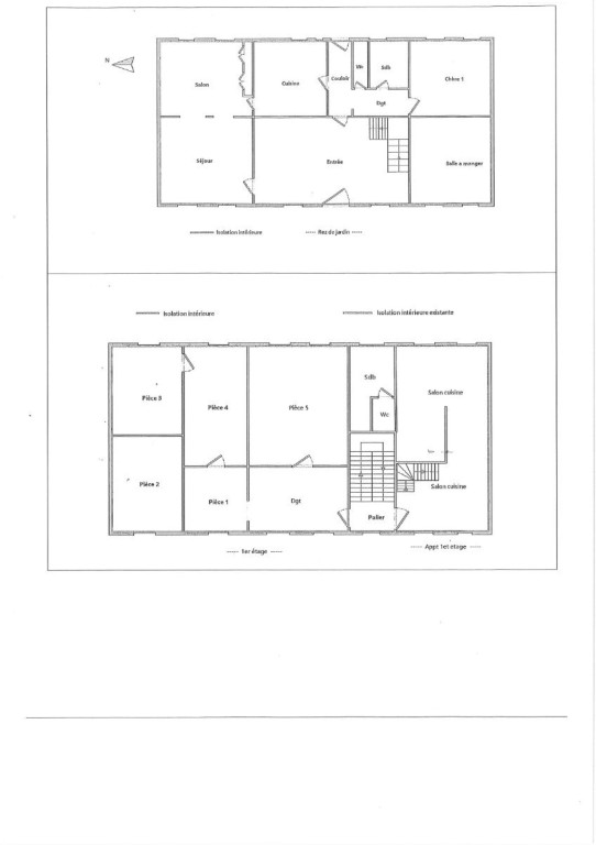
Elle est composée, en rez-de-jardin, d'une entrée desservant les pièces de réception : une vaste pièce de vie, une cuisine équipée et meublée, une salle à manger, un salon bibliothèque, une chambre, une salle d'eau et un WC indépendant.
A l'étage plusieurs espaces indépendants, de part et d'autre du palier, un premier appartement rénové de 60 m² comprenant une cuisine équipée ouverte sur un salon-séjour, une salle d'eau avec WC, une chambre à l'étage supérieur. Puis, un second appartement à rénover de 88 m² composé d'un hall d'entrée, d'un salon-séjour et de trois chambres dont une en enfilade.
Pour compléter, un grenier aménageable de plus de 70 m² offre un potentiel d'aménagement supplémentaire, plusieurs dépendances et une belle câve voûtée.
Accessible par deux entrées, le parc bénéficie d'un environnement calme et verdoyant.
Une maison bourgeoise, au cachet indéniable, alliant authenticité, espace et multiples opportunuités d'agencement.
Tournus 20 minutes - Lyon 1h30 - Genève 1h50.
(Le terrain se situe en zone UB permettant un accès à la construction selon le respect du Plui en vigueur)
Logement à consommation énergétique excessive : classe F.
Les informations sur les risques auxquels ce bien est exposé sont disponibles sur le site Géorisques : www.georisques.gouv.fr
Réf : 673
Caractéristiques
Aménagements
- Surface des dépendances : 36 m2 env.
- cuisine : amenagee
- chauffage : individuel gaz
Informations financières
- honoraires à charge : du vendeur
- soumis au statut de la copropriété : non
Quelques surfaces plus en détail
Surfaces données à titre indicatif – Non contractuelles :
- Cave voutee (niveau -1) : utile : 23.8 m2
- Entree/salon (niveau 0) : 34.2 m2
- Cuisine (niveau 0) : 12 m2
- Salle a manger (niveau 0) : 42.6 m2
- Salon bibliotheque (niveau 0) : 27.3 m2
- Salle d'eau (niveau 0) : 4.5 m2
- Wc (niveau 0) : 1.6 m2
- Chambre 1 (niveau 0) : 17.6 m2
- Couloir (niveau 0) : 4.9 m2
- Dégagement (niveau 0) : 3.8 m2
- 1/2 palier (niveau 0) : 3 m2
- Palier (niveau 1) : 3.4 m2
- Appartement (niveau 1) : 60.5 m2
- Appartement (niveau 1) : 88.6 m2
Voir quelques surfaces plus en détailImprimer la ficheVoir nos prestations et tarifs
Classe énergie et classe climat
dont émissions de Gaz à effet de serre
En savoir plus
Classe énergie et classe climat
Montant estimé des dépenses annuelles d'énergie
Les dépenses d'énergie sont estimées entre 8 160 € et 11 090 € par an selon l'année de référence 2021.
Estimation de dépenses en fonction du logement et pour une utilisation standard sur 5 usages (chauffage, eau chaude sanitaire, climatisation, éclairage, auxiliaires).
L'agence
BOURGOGNE PRESTIGE Immobilier
AGENCE DE TOURNUS
2 Place de l'Abbaye
71700 TOURNUS
Tél : 03.85.20.08.08
Votre conseiller pour visiter ce bien
Mario PISTOIA
Tél : 03.85.20.08.08
Tél mobile : 06.51.23.16.41
Contactez-nous via ce formulaire ou appelez-nous pour visiter ce bien
Ecoles, transports, sorties et commerces sur LOUHANS (71500)
Louhans est une ville de 6 454 habitants. Côté immobilier, les habitations sont réparties en 59 % de maisons et 41 % d'appartements. On y trouve des commerces dont des supermarchés ou supérettes. On trouve des établissements scolaires à Louhans.


Bourgogne Prestige


















